中核机械始终专注于提取浓缩设备、蒸发器、工艺罐体和系统模块的设计制造。

一、适用范围
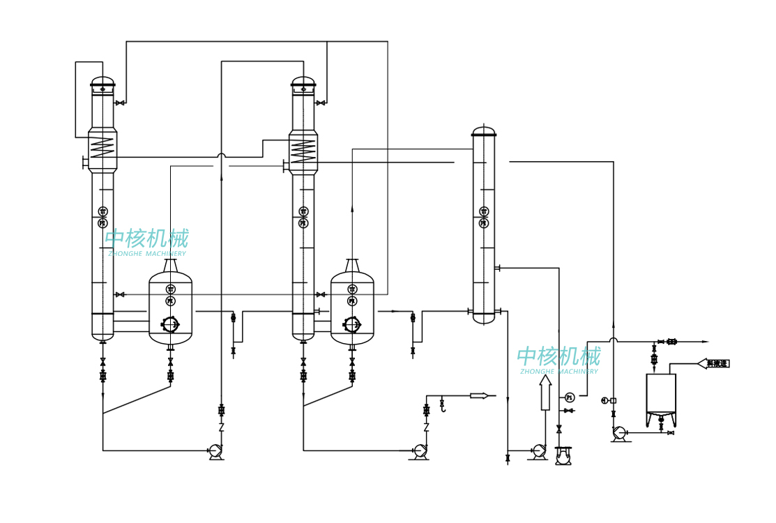
降膜蒸发器是一种高效单程非循环型膜式蒸发设备,具有传热效率高、传热系数大、温差损失小、物料加热时间短、不易变质、易于多效操作、能耗低、设备体积小等特点。适和牛奶、果汁、生化、制药、调味品、食品添加剂等物料的浓缩。
二、设备组成
加热器、分离器、冷凝器、预热器、真空系统、电器仪表、控制柜、工作平台等。材质SUS304或SUS316L根据物料工艺要求定。
三、设备特点
1.物料在加热管中停留时间很短,特别适用于热敏性物料及浓度较低不易结晶物料的蒸发浓缩。可连续进料,连续出料;
2.蒸发温度较低,可根据客户要求选择效数和蒸发温度;
3.降膜蒸发器是将料液自蒸发器上管箱加入,经液体分布及成膜装置,均匀分配到各个换热管内,在重力和真空诱导和气流共同作用下,液体成均匀膜状自上而下流动,流动过程中,被壳程加热介质加热,液体汽化,产生的蒸汽和液体共同进入蒸发器的分离室,汽液经充分分离,二次蒸汽进入下一效蒸发器作为加热介质,从而实现多效降膜操作。
4.冷凝器结构独特,传热系数大,效果好;
5.可根据客户要求采用自控和手控两种机型。
6.降膜蒸发温差损失小,没有液体静压引起的沸点升高,且在小温差下仍能保证较高的传热系数,可在很小温差下也能正常高效运转,很容易实现多效操作,从而达到降低蒸汽消耗的目的。


欢迎您发送【在线留言】!您有任何关于我司产品的建议及问题,可通过641880606@qq.com给我们发邮件,也可通过此询盘向我们反馈;我们将在24小时内给您回复。(周一至周五9:00—17:30)
更多蒸发浓缩设备产品
中核机械始终专注于提取浓缩设备、蒸发器、工艺罐体和系统模块的设计制造。